Tu navegador no soporta el uso de javascript y por lo tanto muchas de las funcionalidades de esta web no estarán disponibles. Allhouses Servicios Inmobiliarios - Casa independiente en A Guarda con vistas al Miño y al...

Casa independiente en A Guarda con vistas al Miño y al Monte Santa Tecla Venta

410.000 €

Guarda (A) > Guarda (A)
Ref.: C000253
359 m2
1115 m2
4
3
Descripción
ALLHOUSES presenta esta acogedora y luminosa vivienda independiente situada en A Pasaxe (Camposancos), una de las zonas más tranquilas y soleadas de A Guarda.

Su ubicación ofrece preciosas vistas al río Miño y al Monte Santa Tecla, creando un entorno natural único para quienes buscan calidad de vida, calma y amplitud.

Construida en 2004 y en excelente estado de conservación, la propiedad cuenta con 359 m² distribuidos en tres plantas, ofreciendo un diseño funcional, cómodo y pensado para el día a día.

La planta baja alberga la zona de lavandería, sala de calderas y un amplio garaje con capacidad para tres vehículos.
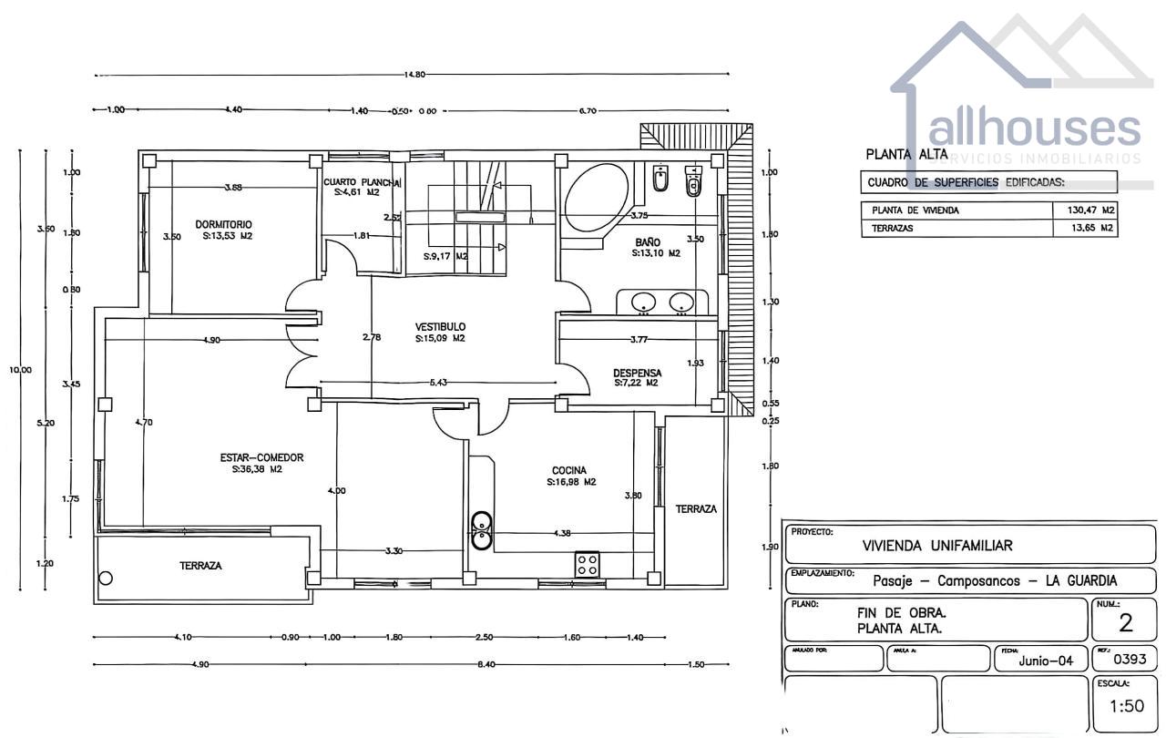
En la primera planta se encuentra un salón muy luminoso, un comedor independiente, un baño completo y un dormitorio.
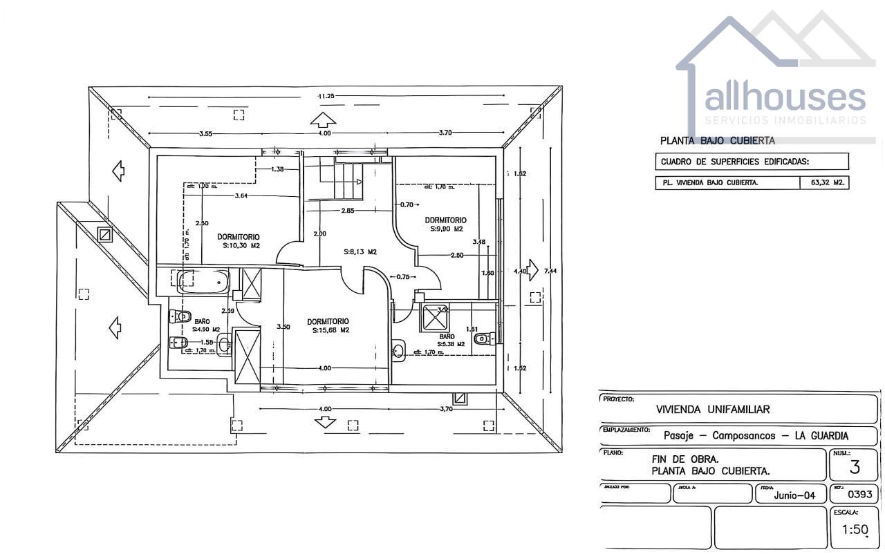
La planta superior dispone de tres dormitorios adicionales y dos baños, proporcionando privacidad y espacio para toda la familia.

En cuanto a calidades, la vivienda dispone de ventanas de aluminio con doble acristalamiento, suelos de plaqueta y tarima flotante en uno de los dormitorios, armarios empotrados y calefacción de gasoil. La propiedad cuenta con agua de la traída y conexión a la red de alcantarillado.

El exterior es uno de los puntos fuertes del inmueble: un amplio jardín de 1.115 m² repleto de frutales, zona verde y un churrasquero cerrado ideal para disfrutar de reuniones y comidas al aire libre. En esta zona exterior se encuentra también un baño completo adicional, aportando comodidad y versatilidad a la finca.

Una propiedad que combina amplitud, luminosidad, privacidad y un entorno natural privilegiado. Lista para entrar a vivir y disfrutar.

_________
ALLHOUSES
Con nosotros... como en casa.

Nota: Este anuncio es meramente informativo y no tiene carácter contractual. Puede contener errores involuntarios.
Características
Referencia
C000253
Antigüedad
22 años
Tipo de casa
Chalet
Alturas del edificio
3 plantas
Cert. Energética
En Trámite
Superficie
359 m2
Habitaciones
4
Baños
3
Electrodomésticos
Calefacción
Tipo calefacción
Gasóleo Individual
Garaje incluido
Plazas de garaje
3
Trastero
Finca
Metros Finca
1115 m2
Tipo finca
Llana
Tipo suelo
Plaqueta
Luminoso
Exterior
Vistas
Doble cristal
Centro ciudad
0 km
Alcantarillado
Agua de traida
Barbacoa
Armarios empotrados
Ubicación
Visualizar ubicación en Google Street View
(Recordatorio: Este servicio depende exclusivamente de Google y no está disponible para todas las ubicaciones)
Calificación Energética
Certificación en proceso de tramitación.
Calificación Energética
Contacte ahora

Si lo prefiere rellene este cuestionario
Nombre
Teléfono
E-mail
Forma de contacto
Consulta
Información básica Protección de Datos
Responsable del tratamiento: ALLHOUSES
Finalidad: Atender y contestar su consulta
Legitimación: Consentimiento expreso del interesado
Destinatarios: No se ceden datos a terceros excepto obligados por Ley
Derechos: Puede ejercer sus derechos de acceso, rectificación o supresión, así como otros detallamos en la información adicional sobre Protección de Datos
Información adicional: para más información visita nuestra Política de Privacidad
He leído y acepto la Política de Privacidad
Sí, deseo recibir información comercial de ALLHOUSES
¡Compártelo!