Tu navegador no soporta el uso de javascript y por lo tanto muchas de las funcionalidades de esta web no estarán disponibles. Allhouses Servicios Inmobiliarios - PARCELA EDIFICABLE CON PROYECTO Y LICENCIA

PARCELA EDIFICABLE CON PROYECTO Y LICENCIA Venta

130.000 €

Vincios > Gondomar
Ref.: S000025
1349 m2
Rebajado
Imágenes en 360º y panorámicas
Vídeo
Descripción
ALLHOUSES presenta PARCELA EDIFICABLE CON PROYECTO Y LICENCIA en VINCIOS-GONDOMAR

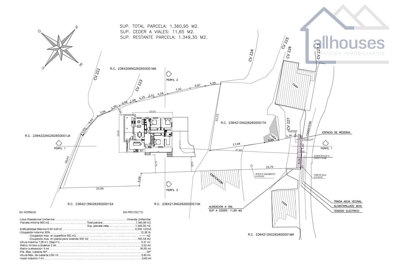
Fabuloso terreno para construir tu nuevo hogar, la compra de esté terreno incluye el PROYECTO con sus licencias ya concedidas, en VINCIOS - GONDOMAR.

El terreno llano y soleado de 1349 m2 de superficie, dispone de conexión de agua de vecinal y contador de red eléctrica. La conexión al Saneamiento se encuentra en la propia parcela, lo que permitirá una futura y fácil conexión a este servicio municipal.

La licencia del expediente de obra ya está pagada y concedida con la cesión al ayuntamiento de Gondomar realizada mediante escritura notarial.

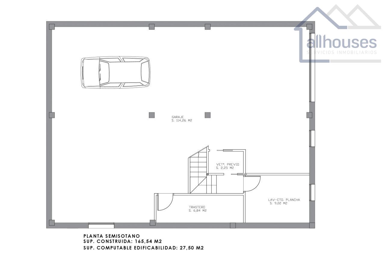
El proyecto incluye el Básico y el de Ejecución, para una vivienda unifamiliar de Semisótano y Planta Baja, que se distribuye de la siguiente forma:

PLANTA SEMISÓTANO: con una superficie construida 165,54 m2 se distribuye en: Garaje de 114,26 m2, Vestibulo Previo de 2,25 m2, Lavadero y Cto. de plancha de 9,02 m2, Trastero de 6,84 m2 y escaleras interiores.

PLANTA BAJA: con una superficie construida de 138,57 m2 se distribuye en: Porche de 12,97 m2, Recibidor de 7,67 m2, Cocina de 18,55 m2, Salón - Comedor de 22,77 m2 con acceso a Terraza de 20,48 m2, Distribuidor de 6,30 m2, Baño General de 6,25 m2, 2 dormitorios de 11,61 m2 y una Suite Principal de 12,37 m2 con Vestidor de 6,56 m2 y un baño de 4,15 m2.

ATICO: con una superficie de 70,38 m2 destinada a desván y escaleras interiores.

Con una excelente ubicación dado su situación próxima a servicios de primera necesidad en Vincios Gondomar, donde encontraremos farmacia, Supermercados, Colegios, Bares entre otros y a tan solo 2 min del acceso a autopista, 4 minutos del centro de Gondomar y a 10 min de las Playas del Val Miñor.

No esperes tu hogar te espera, es llegar y empezar a construir.

____________________
ALLHOUSES
Con nosotros... como en casa.

Nota: este anuncio es meramente informativo y carece de valor contractual, puede contener algún error involuntario.
Características
Referencia
S000025
Orientación
Frente Este
Tipo de solar
Parcela
Superficie
1349 m2
Edificable
Obra nueva
Tipo finca
Ligera Pendiente
Alturas edificables
3
Metros catastro
1349 m2
Metros fachada
10 m
Tipo de título
Notarial
Tipo suelo del solar
Urbano
Alcantarillado
Agua de traida
Luz
Centro ciudad
3 km
Línea de bus
Tipo de acceso
Bueno
Tipo vía de acceso
Carretera asfaltada
Ubicación
Visualizar ubicación en Google Street View
(Recordatorio: Este servicio depende exclusivamente de Google y no está disponible para todas las ubicaciones)
Contacte ahora

Si lo prefiere rellene este cuestionario
Nombre
Teléfono
E-mail
Forma de contacto
Consulta
Información básica Protección de Datos
Responsable del tratamiento: ALLHOUSES
Finalidad: Atender y contestar su consulta
Legitimación: Consentimiento expreso del interesado
Destinatarios: No se ceden datos a terceros excepto obligados por Ley
Derechos: Puede ejercer sus derechos de acceso, rectificación o supresión, así como otros detallamos en la información adicional sobre Protección de Datos
Información adicional: para más información visita nuestra Política de Privacidad
He leído y acepto la Política de Privacidad
Sí, deseo recibir información comercial de ALLHOUSES
¡Compártelo!