Tu navegador no soporta el uso de javascript y por lo tanto muchas de las funcionalidades de esta web no estarán disponibles. Allhouses Servicios Inmobiliarios - TERRENO CON PROYECTO Y LICENCIA EN SAN ANDRÉS DE COMESAÑA

TERRENO CON PROYECTO Y LICENCIA EN SAN ANDRÉS DE COMESAÑA Venta

120.000 €

San Andrés de Comesaña > Vigo
Ref.: S000061
540 m2
Reservado
Descripción
TERRENO CON PROYECTO Y LICENCIA EN SAN ANDRÉS DE COMESAÑA

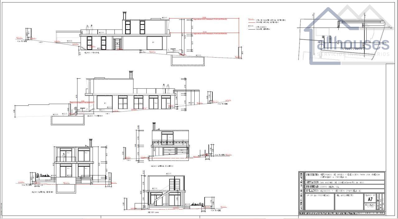
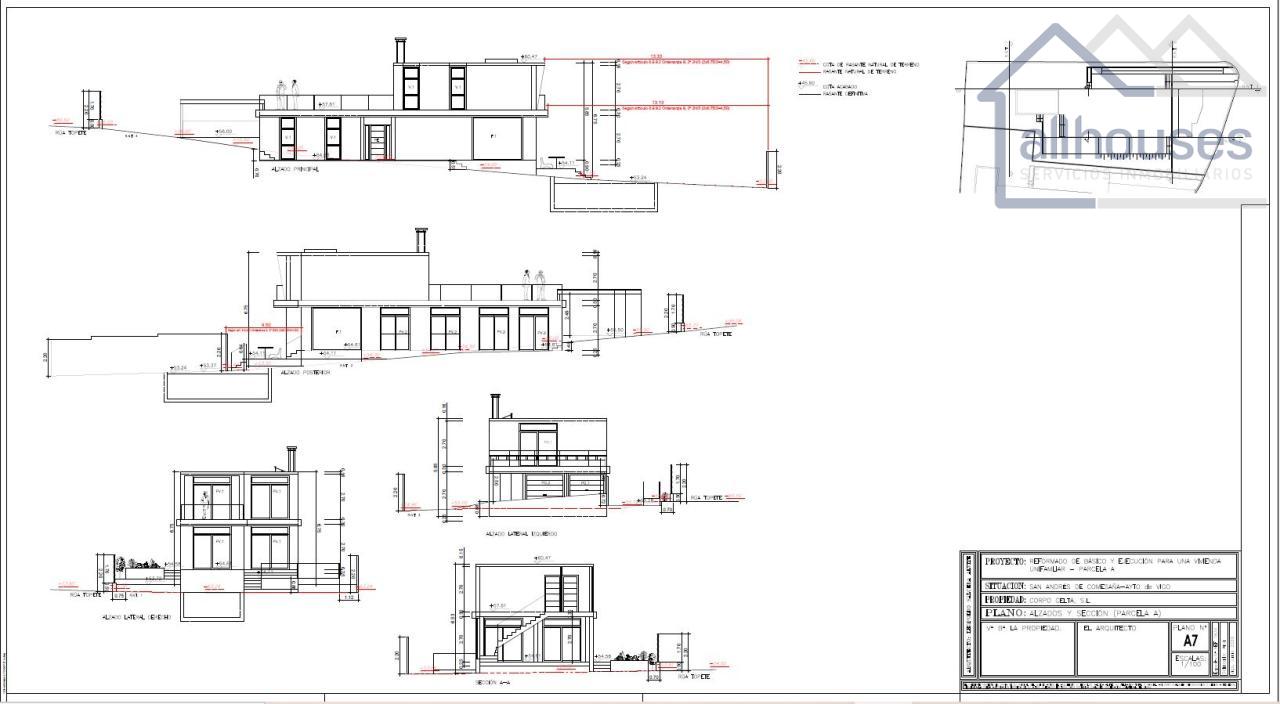
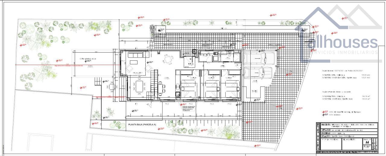
Parcela totalmente llana, soleada y con excelente orientación. Tiene una superficie de 540 m2 según catastro. Dispone de PROYECTO DE EJECUCIÓN Y LICENCIA concedida para construir un chalet de dos plantas con una superficie de 199 metros cuadrados distribuidos de la siguiente manera:

Planta Baja: hall-distribuidor, tres dormitorios, baño, cuarto de lavandería, salón-comedor y cocina de concepto abierto con salida a terraza. Subtotal: 140 m2.
Planta Primera: escalera acceso, dos dormitorios, dos baños, terraza. Subtotal: 59 m2

El proyecto cumple con todos los requisitos de modernidad. Estamos ante una arquitectura contemporánea con toques minimalistas, destacando la simplicidad de sus formas y la racionalidad del espacio.
Contar con un proyecto de ejecución aprobado te permitirá iniciar la construcción sin tener que invertir meses en trámites administrativos, elaboración y visado de planos ni gestiones con el ayuntamiento.

Se encuentra a tan sólo 10 minutos de Plaza América, de la Playa de Samil o la del Vao.
En cuanto a comunicaciones, está muy próximo a la parada de autobús urbano y a la entrada de la autovía de circunvalación de Vigo que te lleva al Hospital Álvaro Cunqueiro, a la Ciudad Universitaria, a los Parques Tecnológicos de Vigo y de Vincios, al Aeropuerto o a cualquier otro destino (Santiago, La Meseta o Portugal...).

Ubicación privilegiada, en un entorno natural, donde podrás disfrutar de la ruta de senderismo de A Fonte da Loureira o del bonito Parque Forestal ?Aguieira'.

Si lo necesitas, también podemos ayudarle a conseguir la financiación con condiciones muy ventajosas. Además, te explicaremos todo el proceso de compra, impuestos, hipoteca, etc.

No dude en pedir más información y concertar una visita. Estaremos encantados de informarle y de asesorarle poniendo a su disposición todos los servicios que necesita para la compra.
+INFO 620 873 735

_______________
ALLHOUSES
Con nosotros... como en casa.

Nota: este anuncio es meramente informativo y carece de valor contractual, pudiendo contener algún error involuntario.
Características
Referencia
S000061
Tipo de solar
Parcela
Superficie
540 m2
Edificable
Registrada
Alturas edificables
2
Metros registrados
540 m2
Metros catastro
540 m2
Tipo de título
Notarial
Tipo suelo del solar
Urbano
Tipo de cierre
Bloque
Alcantarillado
Agua de traida
Luz
Centro ciudad
5 km
Tipo de acceso
Regular
Tipo vía de acceso
Carretera asfaltada
Ubicación
Visualizar ubicación en Google Street View
(Recordatorio: Este servicio depende exclusivamente de Google y no está disponible para todas las ubicaciones)
Contacte ahora

Si lo prefiere rellene este cuestionario
Nombre
Teléfono
E-mail
Forma de contacto
Consulta
Información básica Protección de Datos
Responsable del tratamiento: ALLHOUSES
Finalidad: Atender y contestar su consulta
Legitimación: Consentimiento expreso del interesado
Destinatarios: No se ceden datos a terceros excepto obligados por Ley
Derechos: Puede ejercer sus derechos de acceso, rectificación o supresión, así como otros detallamos en la información adicional sobre Protección de Datos
Información adicional: para más información visita nuestra Política de Privacidad
He leído y acepto la Política de Privacidad
Sí, deseo recibir información comercial de ALLHOUSES
¡Compártelo!